Používame cookies na optimalizáciu našich webových stránok a našich služieb. Ďalšie informácie o cookies nájdete tu.

Nastavenie


REZERVOVANÉ - 4,5-izbový byt po kompletnej rekonštrukcii v stave HOLOBYTU

REZERVOVANÉ - 4,5-izbový byt po kompletnej rekonštrukcii v stave HOLOBYTU

ul. Duklianska, Bardejov

 

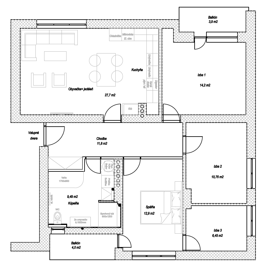
  Úžitková plocha bytu 126 m2

 Vlastné kúrenie, predpríprava kozub, podlahové kúrenie

 2 balkóny, pivnica, garáž, vlastná záhradka

 moderné technológie a nízke náklady na bývanie

 možnosť dokončenia podľa vlastných predstáv

Popis nehnuteľnosti

ZÁKLADNÉ ÚDAJE:ZÁKLADNÉ ÚDAJE:

Ulica: Duklianska

Zastavaná plocha bytu: 94 m2

Plocha pivnice: 15 m2

Garáž: 16 m2

Balkón: Dva

Poschodie: 2 p.

Stav: novozrekonštruovaný

Orientácia: J/S

Energetický certifikát:  Nie

Mesačné náklady: 100/ rodina

 

DISPOZÍCIA:

Byt pozostáva z:

- troch samostatných izieb a jednej menšej izby vhodnej ako šatník alebo pracovňa,

 - obývacej časti spojenej s kuchynskou časťou,

 - kúpeľne spojenou s WC,- chodbou,

dvoma balkónmi , veľkou pivnicou a garážou

- podiel na pozemku, záhradka


Výhodou tohto bytu je priestrannosť, podlahové kúrenie s vlastným kotlom, predpríprava na komín, 

dva balkóny, garáž, celková modernizácia bytu, nízke náklady na bývanie

a možnosť dokončenia podľa vlastných predstáv.

 

Kompletná rekonštrukcia pozostáva z:

Podlaha, steny, stropy:

- Izolácia a systémové dosky

- Podlahové kúrenie

- Nový plynový kotol Protherm so zásobníkom 100 l

- Sadrokartónové stropy- Steny vyrovnané sadrokartónom /predsadená konštrukcia/- Nové priečky

 

INŽINIERSKE  SIETE:

- Nová elektroinštálácia

-  Nové rozvody odpadu a vody

- Nová prípojka vody, vlastné meranie

- Rozvod dátových sietí v každej izbe

- Plánovaná optická prípojka do bytu

 

KÚPEĽŇA  PREDPRÍPRAVA:

- Sprchový kút 120x90 cm

-Vaňa 170 cm

- WC – Geberit

- Práčka, sušička, kotol

 

OBÝVAČKA S KUCHYŇOU PREDPRÍPRAVA:

- Predpríprava kuchyňa, 

- Plyn, alebo sklokeramická doska 400 W

- Predpríprava kozub

 

BALKÓNY:

 - Nová hydroizolácia

- Dlažba

- Zábradlie – možnosť výberu

 

OKNÁ A DVERE:

- Plastové okná 5r. Dvoj-komorové

- Bezpečnostné dvere

CENA A PLATBA

Cena nehnuteľnosti v stave HOLOBYTU:   169.990,- Eur

Platba prostredníctvom hypotekárneho úveru, alebo v hotovosti.

Zabezpečíme Vám vybavenie hypotekárneho úveru, poistenie nehnuteľnosti a 

ďalšie finančné služby podľa potreby

 

Táto inzercia nie je verejnou ponukou na uzavretie zmluvy. Vlastník si vyhradzuje právo voľby o tom, komu a za akých dojednaných podmienok prevedie svoje vlastnícke právo.

CELKOVÝ DOJEM MAKLÉRA

Táto ponuka je mimoriadne atraktívna pre milovníkov veľkých bytov,

nakoľko takéto byty v meste nie sú často dostupné.

Výhodou je kompletná rekonštrukcia od základov, možnosť dokončenia podľa vlastných predstáv

a bohaté príslušenstvo ku bytu: 2 balkóny, pivnica, garáž, vlastná záhradka

a to priamo v meste.

 

 

Martina Šnyrová

Špecialista na predaj a prenájom nehnuteľností 

Som Martina Šnyrová a mám za sebou viac ako 10 rokov skúseností ako realitná maklérka v Bardejove.

Pre mňa je táto práca oveľa viac ako len zamestnanie - stala sa pre mňa životným štýlom, presvedčením a neustálym zdrojom osobnostného rastu. S radosťou komunikujem s ľuďmi, počúvam ich a snažím sa nájsť riešenia pre ich problémy. Oceňujem dôveru, ktorú mi ľudia prejavujú a som tu, aby som im pomohla, či už ide o predaj alebo nákup nehnuteľnosti.

Môj hlavný cieľ je poskytnúť klientom komplexné riešenia s "all inclusive" službami, ktoré ich odľahčia od všetkých aktivít súvisiacich s predajom nehnuteľnosti. Snažím sa, aby tento proces bol pre nich čo najmenej stresujúci a aby sme spolu dosiahli ich ciele.

Verím, že každý obchod je príbeh a ja som tu, aby som vám pomohla napísať ten váš. Spoločne nájdeme miesto, kde budete nielen žiť, ale skutočne doma.


Martina Šnyrová

Kontaktný formulár

Stiahnuť PDF